

































Într-un București în continuă expansiune, unde sediile premium devin un avantaj competitiv, acest spațiu îți oferă mai mult decât birouri: îți oferă vizibilitate, prestigiu și un mediu creat pentru performanță.
🎥 Video de prezentare disponibil!
📌 Locație premium – Kiseleff / Aviatorilor !
Amplasați într-una dintre cele mai căutate zone ale Bucureștiului, etajele superioare ale clădirii de pe strada Emanoil Porumbaru beneficiază de:
🚇 Metrou Aviatorilor – 170 m
🌳 Proximitate directă față de Parcul Herăstrău și Kiseleff
📍 Acces către Primăverii, Calea Victoriei, Charles de Gaulle
🏢 Ambasade, hub-uri de business, restaurante premium
🚗 Conectivitate excelentă cu zona de nord
Adresa ideală pentru companii care își doresc recunoaștere și vizibilitate.
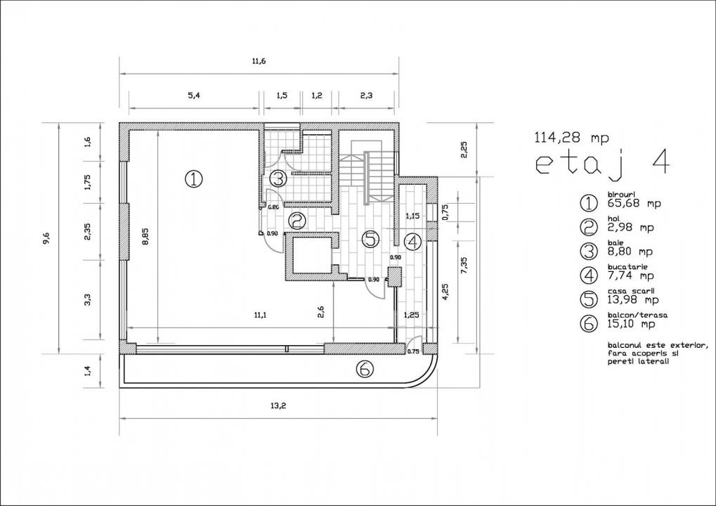
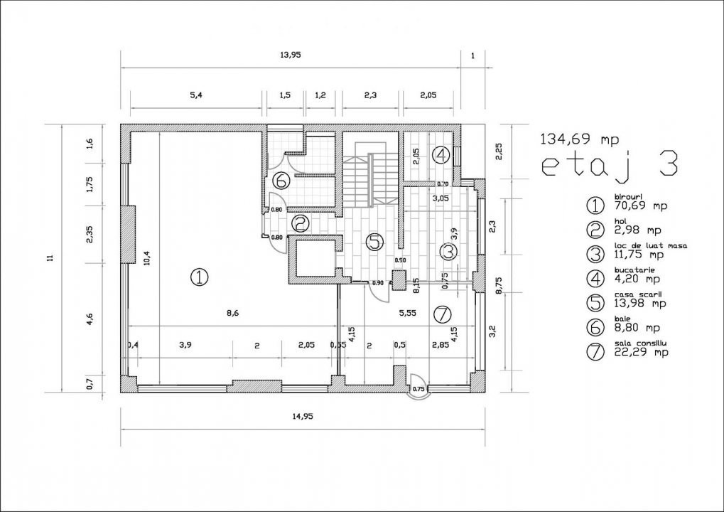
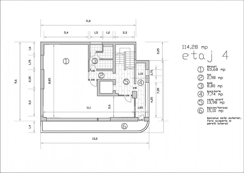
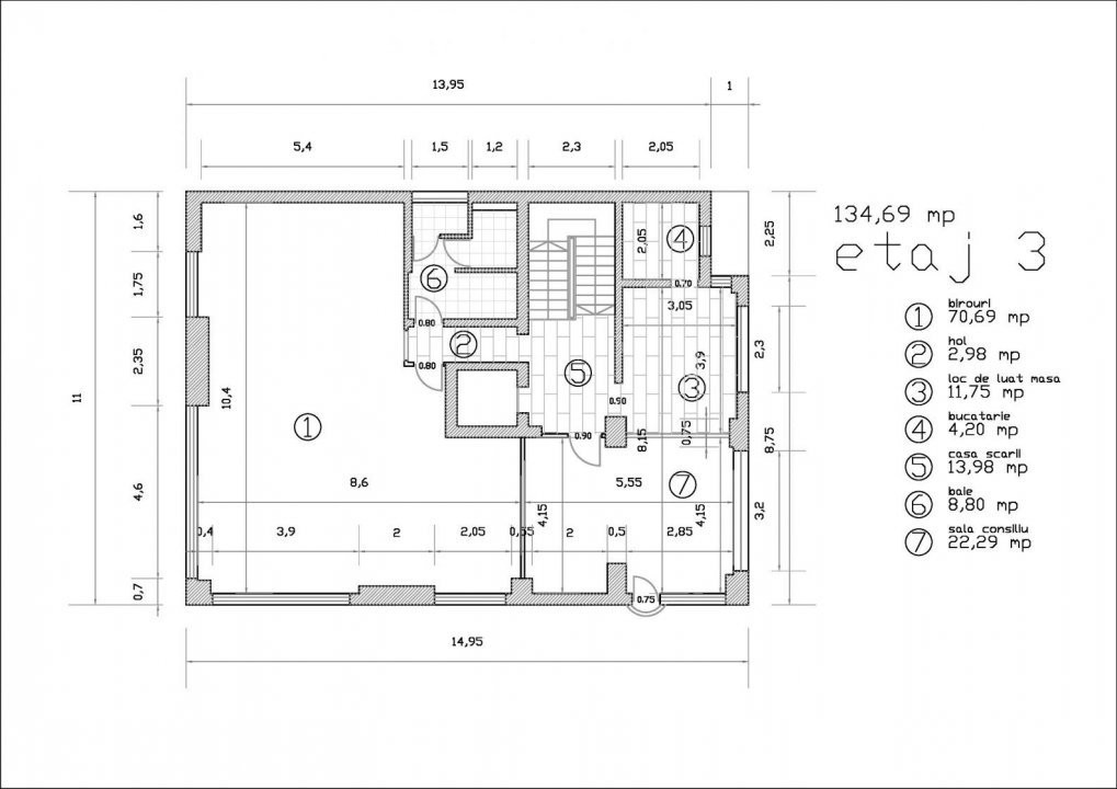
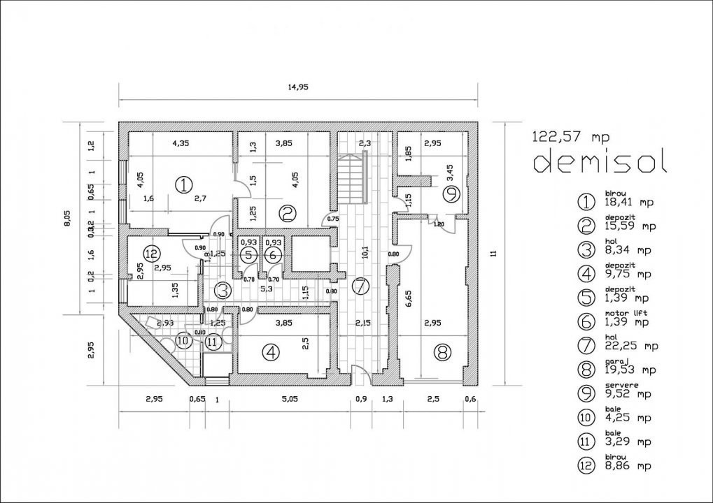
🏢 Spațiul oferit spre închiriere: Etajele 3 + 4 + 5 (etaj retras cu terasă)
Un pachet rar disponibil, cu lumină naturală abundentă, priveliști superbe și acces la un spațiu exclusivist – etajul 5 retras cu terasă privată.
Suprafață totală disponibilă:
📐 suprafata celor 3 etaje – 350 MP total
Configurația exacta o regasiti in schitele anexate!
Etajul 3 – compartimentare modernă, open-space + birouri individuale
Etajul 4 – mix optim pentru echipe, săli de întâlniri, zone de lucru colaborativ
Etajul 5 (retras) – spațiu ideal pentru boardroom, întâlniri executive, lounge, evenimente private + terasă panoramică
Liftul deservește până la etajul 4.
Disponibilitate: IMEDIATĂ
🛠️ Dotări și tehnologii
🔄 Clădire termoizolată / lift modern
❄️ Climatizare integrată + aport aer proaspăt
🔐 Control acces / CCTV / sisteme securitate
🔋 Panouri fotovoltaice + panouri solare + generator – costuri minime
🔥 Sistem anti-incendiu complet, centrală gaz performantă
🌐 Rețea IT enterprise, acces cu amprentă sau card
🗄️ Spații tehnice și depozitare
🚗 Garaj + parcări disponibile în fața clădirii
🔑 Avantaje cheie
✔️ Priveliște, lumină naturală și etaj retras cu terasă
✔️ Zonă premium, prestigioasă
✔️ Costuri operaționale reduse datorită eficienței energetice
✔️ Spațiu elegant, potrivit pentru companii cu cerințe executive
📣 Recomandat pentru:
IT & Software | Consultanță | Executive offices | Arhitectură & Design | Agenții creative | Leadership teams | Companii corporate