






















0% comision | NOU | PARCARE | 86 mp | 2 bai | Incalzire pardoseala | Atrium Plaza
-----------------------------------------------------
*Apartamentele se vând nemobilate și neutilate, imaginile din prezentare având strict rol informativ și de promovare
Dacă îți dorești un apartament nou, spațios și bine poziționat, într-o zonă premium din nordul capitalei, acesta este!
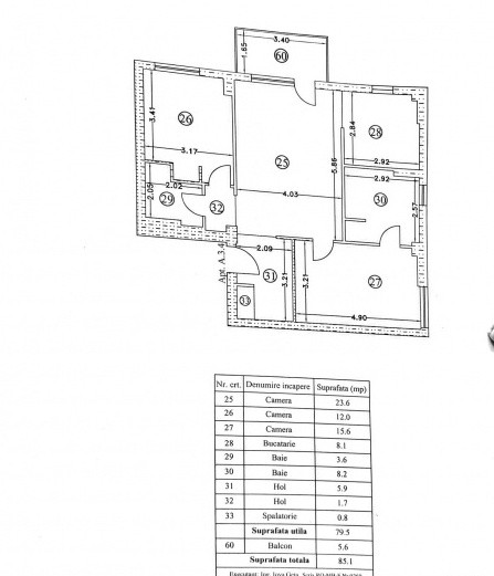
Îți propun spre vânzare un apartament elegant, situat în Atrium Plaza - bloc modern și bine cotat, cu 81 mp utili și balcon de 5,6 mp, ideal pentru un stil de viață rafinat sau o investiție sigură.
Locuința impresionează prin finisaje premium, materiale atent alese și o compartimentare eficientă, care valorifică lumina naturală și senzația de spațiu. Designul este actual, curat și orientat către confort pe termen lung.
Poziționarea este unul dintre punctele forte: zona Șișești – Băneasa, cu acces rapid către Băneasa Shopping City, Aeroportul Băneasa, zonele de birouri din nord, școli private și principalele artere de ieșire din oraș. O locație care oferă echilibru între liniște rezidențială și conectivitate urbană.
Disponibilități limitate în cadrul ansamblului:
• Studiouri – prețuri de pornire de la 105.000 € + TVA
• Apartamente cu 2 camere – de la 147.000 € + TVA
• Apartamente cu 3 camere – de la 216.000 € + TVA
• Parcare supraterana - 15.000 € + TVA
• Parcare subterana - 17.000 € + TVA
Pentru mai multe detalii și stabilirea unei vizionări, aștept să mă contactați!